Sie haben Fragen?
0214 / 860 900 10

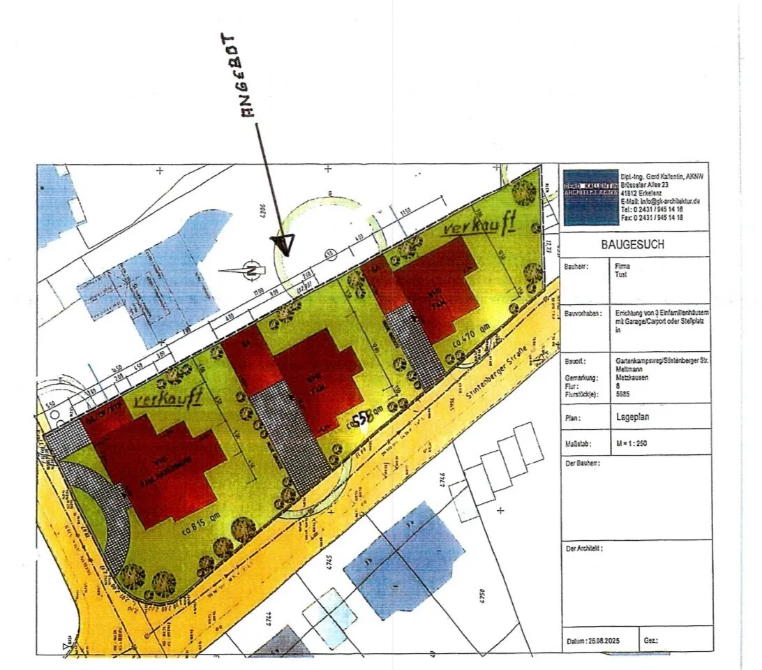
Haus zum Kauf 40822 Mettmann - Mettmann - Metzkausen

Neubauvorhaben Mettmann - Metzkausen 1 Familienhaus / Villa

Bilder anzeigen (2)
  • 970.000 €
  • Objekt-Nr.: 64312-72475
  • 4 Zimmer
  • 4 Schlafzimmer
  • 2 Badezimmer
Teilen auf:

*Pflichtfelder Ihre Anfrage

Neueste Immobilien

53547 Kasbach OhlenbergHochwertig renov. Wohnhaus mit Ausblick in Höhenlage, ca.3 Min. bis Linz + ca. 30 Min. bis Bonn

  • 4
  • 3
Wohnfl.: 150 m²

Kaufpreis
425.000 €

51597 MorsbachAttraktive Baulücke in unmittelbarer Nähe zum Zentrum von Morsbach!

Grundstück: 1.003 m²

Kaufpreis
95.000 €

Gerne für Sie da!
Sie haben Fragen rund um diese Homepage? Rufen Sie uns an: Tel.: 0214 / 860 900 10